Стропила и обрешетка – каркас крыши, который несет на себе всю тяжесть кровельного пирога, термоизоляции, снеговую нагрузку, поэтому они должны обладать высокой несущей способностью, прочностью. Идея использовать металлические стропила, чтобы конструкция кровли получилась более жесткой, не нова, но ранее она применялась в основном для перекрытия промышленных или хозяйственных сооружений. Сейчас стропильный каркас и обрешетка из металлопрофиля считаются реальной альтернативой деревянным элементам крыши, если длина ската превышает 10 метров.
Функции стропил
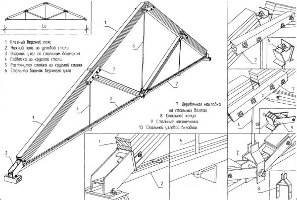
Конструкция стропильного каркаса крыши состоит из множества взаимосвязанных элементов, которые образуют фермы. Шаг, величину сечения между стропилами и другими опорами определяет расчет нагрузок, которым они подвергаются в процессе эксплуатации. Кровельный каркас выполняет следующие функции:
- Распределение нагрузки. Взаимосвязанные узлы, усиленные уголками, равномерно распределяют вес кровли, который может достигать с учетом снеговой нагрузки до 500-600 кг. Чем больше сечение стропил и меньше шаг между ними, тем большую несущую способность имеет конструкция.
- Придание уклона и формы. Стропила, расположенные под углом к основанию крыши, формируют наклонную плоскость скатов, благодаря чему на поверхности кровли не скапливается снег и вода.
- Формирование основания для фиксации кровельного материала. Крепление финишного покрытия кровельного пирога происходит к каркасу кровли. Обрешетка выступает как основа для фиксации покрытия, распределяющая его вес равномерно по стропильным балкам.
Обратите внимание! Какими должны быть все узлы, стропила и обрешетка кровельной конструкции определяет инженерный расчет. Чтобы определить необходимую несущую способность каркаса, необходимо вычислить суммарную нагрузку, которой он будет подвергаться. Для этого складывают вес кровельного материала, утеплителя, гидроизоляции, максимальную снеговую нагрузку с весом стропильной системы.


Виды стропильных систем
Наиболее распространённым материалом, из которого изготавливается обрешетка и стропила каркаса кровли, считается древесина. Однако, если вес кровельного материала достаточно велик, а длина ската больше 6 метров, то конструкция получается слишком массивной. Строителям приходится уменьшать шаг между стропильными ногами, увеличивать их сечение, из-за чего узлы кровли приобретают большой вес, увеличивая нагрузку на фундамент. Разгрузить несущие стены и основание постройки можно, используя более прочные, но легкие металлические стропила. По типу использованного материала выделяют следующие типы стропильных систем:
- Деревянные. Стропила и обрешетка из дерева применяются для возведения крыш, длина ската которых не превышает 7-10 метров. Крепление элементов каркаса между собой происходит с помощью саморезов, гвоздей или подвижных металлических элементов. Шаг между ногами обычно бывает в пределах 50-80 см.
- Металлические. Металлические кровельные каркасы изготавливают из стального металлопрофиля с цинковым покрытием, который не боится влаги. Стропила и обрешетка из этого материала легкие, прочные, поэтому шаг между ними можно увеличить до 1,5-2 метра. Крепление металлопрофиля выполняют при помощи сварки или крепежных элементов. Металлические узлы крыши применяют при длине ската от 10 метров.
- Комбинированные. Стропильный каркас, сочетающий металлические и деревянные узлы, называют комбинированным. Сочетание опорных элементов из дерева и оцинкованной стали позволяет сделать более дешевую конструкцию, обладающую высокой несущей способностью, увеличив шаг между стропилами.


Учтите, что металлические и деревянные элементы каркаса нельзя соединять между собой без прокладки из гидроизоляционного материала или обработки антисептическим препаратом. Так как металл обладает высокой теплопроводностью, его соседство с деревом приводит к образованию конденсата и загниванию стропил.
Методы крепления
Металлические стропила собирают в фермы треугольной, трапециевидной или арочной формы. К балкам рамы прикрепляют внутренние ребра жесткости, которые образуют уголки, значительно увеличивающие несущую способность каркаса. Такая система позволяет сделать шаг между стропилами больше, сделав расчет на опорные возможности каждой фермы. Крепление металлических элементов каркаса крыши выполняют одним из следующих методов:
- Крепление с помощью сварки. Если сварить детали стропильной системы с помощью сварочного аппарата, можно получить жесткую конструкцию, обладающую высокой прочностью и несущей способностью. Если правильно выполнить расчет кровли, можно облегчить каркас и снизить нагрузку на фундамент сооружения. Недостаток этого метода в том, что выполнить сварку может только профессионал с помощью специального оборудования.
- Крепление с помощью болтов. Фиксация стропил с помощью крепежных элементов позволяет выполнить менее жесткое крепление. Этот способ сборки стропильного каркаса на основе металлопрофиля используется в частном домостроении, где длина скатов не превышает 10 метров. Отказ от сварки позволяет ускорить монтаж крыши.
Опытные мастера делают расчет на то, что металлическая обрешетка и стропила могут выдержать больший вес, чем деревянные, поэтому можно увеличить шаг между ними и уменьшить толщину сечения элементов. Более того, в строительных магазинах продаются готовые стропильные фермы, крепление которых выполнялось методом сварки, пригодные для перекрытия построек стандартной ширины.




Преимущества
Металлический стропильный каркас используют для возведения крыш любой формы, любой скатности с уклоном от 1-2 градусов. В качестве материала, из которого изготавливаются стропила и обрешетка, используются стальные уголки, трубы круглого и прямоугольного сечения, тавры. Чтобы правильно подобрать толщину элементов каркаса и выбрать шаг между ними, выполняют расчет конструкции крыши, учитывающий постоянные и временные нагрузки, которые передаются стропильным балкам в процессе эксплуатации. Достоинствами стропильной системы из этого материала считают:
- Пожарная безопасность. В отличии от деревянных, металлическим балкам каркаса не страны возгорания, что повышает пожаробезопасность здания.
- Простота обслуживания. Цинковое гальваническое покрытие, которым покрывают стальные уголки, защищает каркас крыши от коррозии в течении всего срока службы. Им, в отличии от деревянных, не требуется ежегодная обработка антисептиком.
- Безотходность. Хотя металлические конструкции обходятся достаточно дорого, оно считается экономически выгодным, так как крепление выполняется сварным методом, а отходов практически не остается.
- Долгий срок службы. Если правильно выполнить расчет нагрузок, то кровельный каркас из металла прослужит более 100 лет, что превышает срок эксплуатации даже самых устойчивых кровельных покрытий.
Профессиональные кровельщики считают, что целесообразно использовать сварные металлоконструкции для изготовления стропильного каркаса крыши при длине ската от 10-12 метров. При этом главная задача – правильно выполнить расчет нагрузок, а затем определить шаг между ногами в соответствии с климатическими характеристиками и свойствами кровельного материала.


Недостатки
Несмотря на очевидные достоинства, металлические стропильные системы – не самое популярное конструктивное решение в частном домостроении. Даже большой шаг между стропилами и разреженная обрешетка при высокой стоимости метала не могут сделать конструкцию дешевле деревянной. Недостатками металлических стропил считают:
- Высокая теплопроводность. Металл обладает высоким коэффициентом теплопроводности, поэтому стропила и обрешетка крыши образуют мостики холодна. С точки зрения энергоэффектвности, каркас из металлопрофиля – не лучшее решение.
- Проблематичность транспортировки и монтажа. Выбирая металлическую стропильную систему, принимайте в расчет, что перевозить, поднимать на высоту и осуществлять крепление длинных и тяжелых элементов сложнее, чем стропила пиломатериалов стандартной длины.
- Сложность монтажа. Для подъема на высоту и фиксации ферм используется специальная техника, аренда или покупка которой обходится дорого.
- Деформация под действием высокой температуры. Хотя металл считают негорючим материалов, во время пожара он сильно деформируется, что обычно приводит к обрушению кровли.
Чтобы определить имеет ли смысл использовать более дорогие стропильные элементы из металлопрофиля, нужно выполнить расчет каркаса крыши. Если длина ската превышает 10 метров, а нагрузка более 450-600 кг, то монтаж металлического каркаса экономически целесообразен.


Видео-инструкция