Наши предки, проживающие на территории чуть ли не самой холодной страны на планете, зимой обогревали жилища дровяными печами. В эпоху, когда каждая жилая постройка оснащается газовым котом, печи и камины стали экзотикой, установка которых служит элементом декора, а не практической необходимостью. Однако, эти приборы все же являются отопительными, поэтому требуют организации дымоудаления. В этой статье мы расскажем, как происходит устройство дымохода для камина.
Устройство и принцип работы
Дымоходы для каминов или печи – каналы, через которые происходит выведение смеси газов, представляющую собой продукты сгорания топлива, из топки отопительного прибора в атмосферу. Конструкция этих элементов отопительной системы выполняется в виде трубы или кирпичной шахты, от герметичности которой зависит правильно ли работает система. Дымоходы для каминов и печи необходимы, так как без них невозможно эксплуатировать теплогенерирующие приборы, работа которых заключается в следующем:


- В топку теплогенерирующего оборудования (печи, камина, котла) помещают топливо. В основном приборы работают на дровах, газе, спрессованном или каменном угле, мазуте.
- Топливо поджигается с помощью источника открытого огня, в результате чего система вырабатывает большое количество тепла, идущего на поддержание оптимальной температуры в помещении, и дыма.
- Дым, являющийся продуктом сгорания топлива, состоит из смеси углекислого и угарного газа, пепла, сажи, а также других агрессивных химических веществ. Температура дыма, поступающего в дымоходы для каминов или печи, достигает 400-500 градусов, потому, подчиняясь закону конвекции, он поднимается вверх, освобождая место в топке для более прохладного воздуха.
- Конструкция каналов дымоудаления представляет собой вертикальную герметичную шахту, по которой горячий дым поднимается только вверх. Благодаря этому процессу в топку поступает свежий воздух, насыщенный кислородом, необходимый для поддержания горения.
Процесс, заключающийся в подсасывании богатого кислородом воздуха в топку, называется тягой. Чтобы проверить дымоходы для каминов на наличии тяги, нужно поднести к топке зажжённую спичку или свечу: если пламя отклоняется в сторону канала дымоудаления, то система работает правильно. В случае, если пламя свечи горит ровно, говорят об отсутствии тяги. Но самая опасная ситуация складывается при образовании обратной тяги, о ней сигнализирует пламя, отклонившееся в противоположную от дымохода сторону.
Чтобы правильно сделать канал дымоудаления для печи или камина, нужно внимательно изучить информацию об отопительном приборе, указанную в инструкции, а также выполнить расчет объема газа в топке. Смонтировать дымоход для камина своими руками достаточно сложно, так как эта сложная конструкция требует специальных знаний и опыта, которыми могут похвастаться только опытные мастера.
Способы размещения
Сборка и подключение канала дымоудаления происходит после установки отопительного прибора. Однако, выбрать место и выполнить расчет сечения и высоты дымоходной трубы нужно до начала монтажа. Дымоходы для каминов или печей размещают двумя способами:
- Внутреннее размещение. Этот метод размещение предполагает установки и подключение канала дымоудаления внутри отапливаемого сооружения. На территории России традиционно размещали дымоходную трубу печи в доме, выводя на улицу через крышу. Установка канала внутри позволяет защитить его от промерзания, а также снизить теплопотери, происходящие на участке, проходящим по улице. При этом расчет делается на то, что пока дым продвигается по трубе, он постепенно остывает, благодаря чему не происходи образование конденсата. Традиционный внутренний метод размещения имеет 1 отрицательную сторону: труба, особенно кирпичная, занимает много места в помещении. Кроме того, она увеличивает риски возникновения возгораний.

Внутреннее и внешнее размещение канала дымоудаления камина - Внешнее размещение. Установка трубы снаружи здания позволяет увеличить полезную площадь помещений маленького размера. В этом случае дымоходы для каминов выводят через стену, расположенную около отопительного прибора, прямо на улицу. Эта технология пришла в Россию из Америки и Европы, она стала популярной с появлением эффективных термоизоляционных материалов, используемых для утепления канала, и сэндвич-труб, которые не промерзают даже в самый сильный мороз. Минус внешнего размещения заключается в том, что из-за большой разницы внешний и внутренней температуры в дымоходе образуется большой количество конденсата. Чтобы сделать качественный внешний канал дымоудаления, необходимо выполнить подробный расчет точки росы и организовать утепление. Однако, размещение трубы вне здания снижает вероятность возгораний и считается более безопасным.
Обратите внимание! Расчет канала дымоудаления отопительного прибора определяет рекомендуемое сечение и высоту трубы, вычисляет необходимый уровень тяги для поддержания горения. При вычислении этих параметров учитывают мощность прибора, тип используемого топлива, место размещение и климатические условия в регионе строительства. Дымоходы для каминов строят на основе проекта, учитывающего все вышеперечисленные факторы, а подключение производят под контролем профессионального мастера.
Материалы
Дымоходы для каминов изготавливают из различных материалов, которые обладают высокой термостойкостью, низким коэффициентом теплопроводности, отличными огнеупорными качествами, не вступают в окислительные реакции с водой, а также не взаимодействуют с агрессивными химическими веществами, которые содержатся в составе продуктов горения. Чтобы сделать долговечный и надежный канал дымоудаления для печи, используют следующие материалы:
- Кирпич. Он является традиционным материалом для строительства печных дымоходов, так как обладает отличной жаростойкостью, не горит и при правильном уходе служит более 100 лет. Для сооружения трубы применяют полнотелый, обожжённый кирпич, стоимость которого выше, чем простого силикатного. Этот метод является одним из самых дорогостоящим из-за высокой цены материала, необходимости заливки глубокого фундамента. Кроме того, вряд ли получится сделать кирпичный дымоход и осуществить подключение к печи своими руками, придется потратиться еще и на наемных мастеров, услуги которых стоят дорого. Шахта из кирпича имеет прямоугольное или квадратное сечение, поэтому в углах и на шероховатой поверхности материала, оседает сажа и пепел, приводящие к появлению заторов.

Конструкция дымохода из термостойкого кирпича - Керамические трубы. Более доступным по цене является керамический дымоход, который состоит из труб и блоков из легкого бетона для их установки. Он обладает более компактными размерами, поэтому устанавливается и внутри, и снаружи. Срок эксплуатации труб из керамики составляет 30 лет, но правильный уход и регулярная прочистка увеличивают этот период на 10-15 лет. Керамические каналы дымоудаления легче, чем кирпичные, они устанавливаются на монолитное основание из бетонной трубы, поэтому необходимость в заливке фундамента пропадает. В продаже имеются модели с термоизоляционным слоем, которые подходят для отопительных приборов на твердом топливе, где температура продуктов сгорания превышает 300-400 градусов.

Устройство керамического дымохода - Сэндвич-трубы из стали. Самый демократичный и доступный по цене материал, из которого делают дымоходы для печи или камина – сэндвич-трубы. Они представляют два полых стальных цилиндра, вставленные один в другой, с термоизоляционной прослойкой между ними. Сэндвич-трубы обладают легким весом, легко монтируются и служат 15-20 лет. Комплектующие для сборки дымохода подбирают по диаметру вводного патрубка прибора, выполнив расчет необходимой высоты дымохода для поддержания нормального уровня тяги.

Устройство дымохода из сэндвич-труб
Важно! Материал для сборки дымохода выбирают, исходя из вида топлива, на котором работает теплогенерирующий прибор: для каминов и печей, работающих на твердом топливе, лучше подходят кирпичные и керамические трубы, с дымоудлением из газовых моделей неплохо справляются сэндвич-трубы из стали.
Требования к каналам дымоудаления
Использование отопительных проборов связано с риском возникновения пожаров и отравления угарным газом, поэтому к каналам дымоудаления предъявляются жесткие требования, задача которых обезопасить пользователей. Для того, чтобы эксплуатация оборудования не вызывала проблем, при монтаже дымохода необходимо выполнять следующие условия:
- Диаметр трубы выбирается в соответствии с размером вводного патрубка теплогенерирующего оборудования. Если труба больше, соединение между ними получится негерметичным, что может стать причиной утечки угарного газа.
- Места подключения, прокладки и прохождения трубы через стены или перекрытия изолируют огнеупорным материалом, предотвращающим перегрев отделки. Для этих целей используют истовой металл или асбестоцемент.

Требования безопасности при монтаже кирпичного канала дымоудаления - Длину канала дымоудаления определяют, выполняя расчет необходимой тяги, но ее высота от топки до оголовка не должна быть меньше 5 м. Чем выше дымоход, тем больше в нем тяга.
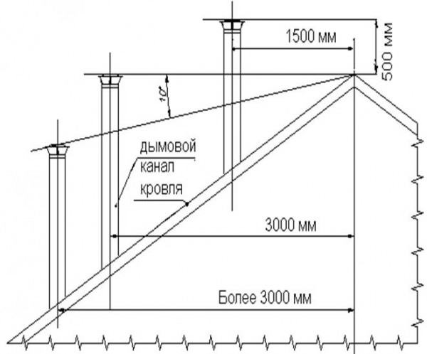
- Оголовок трубы выводят на крыше на расстоянии 0,5-1 от конька или через стену на высоте 1-1,5 м от уровня почвы. Дымоход поднимают на 0,5 м над высшей точкой кровли.

Высота трубы дымохода над коньком крыши - Канал дымоудаления располагают преимущественно вертикально, не допуская более 3 поворотов. Протяженность горизонтально расположенных участков не должна превышать 1 м.
- Цилиндрическая форма сечения считается оптимальным вариантом для трубы, однако, допускаются прямоугольные и квадратные шахты.


Важно! Опытные печные мастера советуют при обсуждении проекта камина настаивать на размещении дымохода внутри дома, при чем обязательно у внутренней, а не наружной стены. При такой схеме установки канал получается более теплым, в нем не возникает дефицита тяги и конденсации паров.
Видео-инструкция